Sold
7 Photos
7 Photos
7 Photos
7 Photos
Bo. Montones, Casa en Las Piedras
Las Piedras, 7 Beds | 3 Baths $ 175,000Description
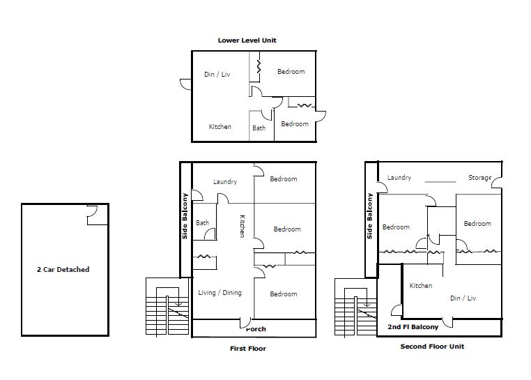
Propiedad multifamiliar de tres unidades en el Bo. Montones, Las Piedras. Tiene dos apartamentos con dos habitaciones y un baño. El tercer apartamento tiene tres habitaciones y un baño. Actualmente está generando renta. ¡Excelente oportunidad de inversión!
More Info on Bo. Montones, Casa en Las Piedras
| Property ID: | 36449 |
| MLS Number: | 52890 |
| Status: | Sold |
| Type: | Multi-Family Homes |
| Price: | $ 175,000 |
| Bedrooms: | 7 |
| Bathrooms: | 3 |
| City: | Las Piedras |
| Community: | |
| HOA: | |
| Floor Area: | 2887 sqft |
| Year Built: | 1975 |
Listing Provided By:
Lillibert Conde
KW Grand Homes
