Sold
15 Photos
15 Photos
15 Photos
15 Photos
Bo. Zanjas, Casa en Camuy
Camuy, 2 Beds | 2.5 Baths $ 280,000Description
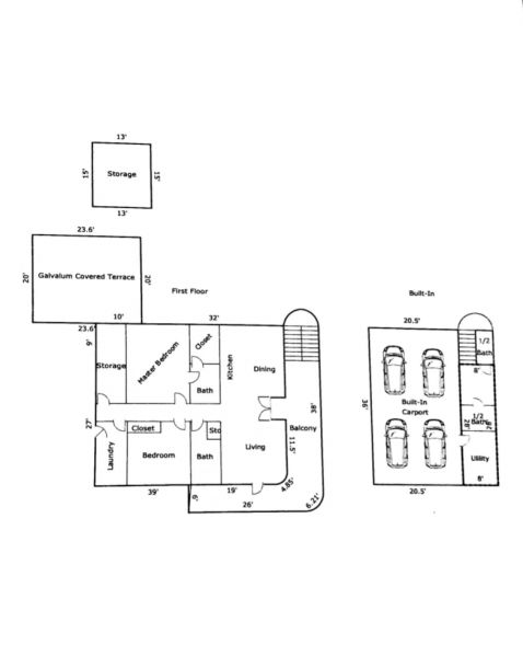
Excepcional casa de dos niveles con 2.5 cuerdas de terreno, con vista al mar y las montañas, a minutos de las más famosas playas como Peñon Amador Beach, y Los Almendros Beach, con el famoso Camuy Zipline y el Parque Nacional de las Cavernas del Río Camuy. La misma consta de 6 cuartos, clósets con puertas en cristal, 3 baños, cocina, terraza cubierta en Galvalum, y cuarto de almacén. Sé venderá con paneles solares, baterías, equipo inverter, dos cisternas con motor, cámaras de seguridad, calentador solar, 3 aires inverters, tiene marquesina para 4 vehículos. Completamente verjada vuelta redonda de la propiedad. Recién tasada. En excelentes condiciones.
Las visitas serán exclusivamente coordinadas para clientes precualificados.
More Info on Bo. Zanjas, Casa en Camuy
| Property ID: | 32473 |
| MLS Number: | 49972 |
| Status: | Sold |
| Type: | Homes |
| Price: | $ 280,000 |
| Bedrooms: | 2 |
| Bathrooms: | 2.5 |
| City: | Camuy |
| Community: | |
| HOA: | N/A |
| Floor Area: | 1493 sqft |
| Year Built: | 1980 |
Listing Provided By:
Winilda Valle
KW Grand Homes
