Urb. Rexville, Local Mixto en Bayamòn
Bayamon, 7 Beds | 7 Baths $ 540,000Description
¡EXCELENTE OPORTUNIDAD DE INVERSION EN REXVILLE, BAYAMÓN! Se vende comercial mixto localizado en la Urbanización Rexville, Bayamón, que consta de Panadería en el primer piso con unidad residencial y en el segundo piso 2 amplias unidades residenciales. Área de construcción de 6,038 p2 en un solar de 609.15 m2. La Panadería se vende con todos los equipos, planta eléctrica, aire acondicionado, en operación y clientela con más de 40 años.
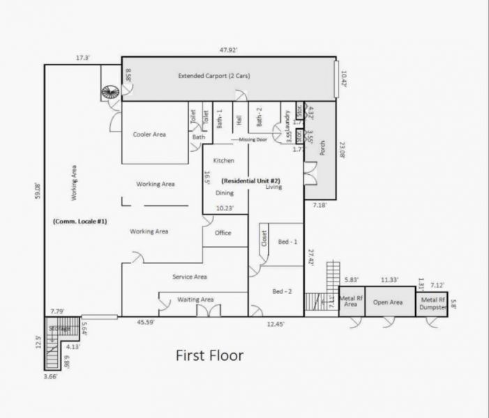
Primer piso Comercial 2,202.65 p2
Unidad Residencial #(1) 862.95 p2 consta de sala, cocina, comedor, 2 habitaciones, 2 baños, área de lavandería y marquesina.
Segundo piso
Unidad Residencial #(2) 1,731.42 p2 consta de sala, cocina, comedor, family, 3 habitaciones y 2 baños
Unidad Residencial #(3) 1,241.16 p2 consta de sala, cocina, comedor, family, 2 habitaciones y 2 baños
***No pierdas esta oportunidad única para que aumentes tus ingresos***
Llama ahora, se requiere carta de pre-aprobación o evidencia de ingresos para coordinar citas.
More Info on Urb. Rexville, Local Mixto en Bayamòn
| Property ID: | 42234 |
| MLS Number: | PR9107258 |
| Status: | Expired Listings |
| Type: | Commercial |
| Price: | $ 540,000 |
| Bedrooms: | 7 |
| Bathrooms: | 7 |
| City: | Bayamon |
| Community: | |
| HOA: | |
| Floor Area: | 6038 sqft |
| Year Built: | 1976 |
Listing Provided By:
Betzaida Sanchez
KW Grand Homes
