Active
12 Photos
12 Photos
12 Photos
12 Photos
1366 WILSON AVE #2
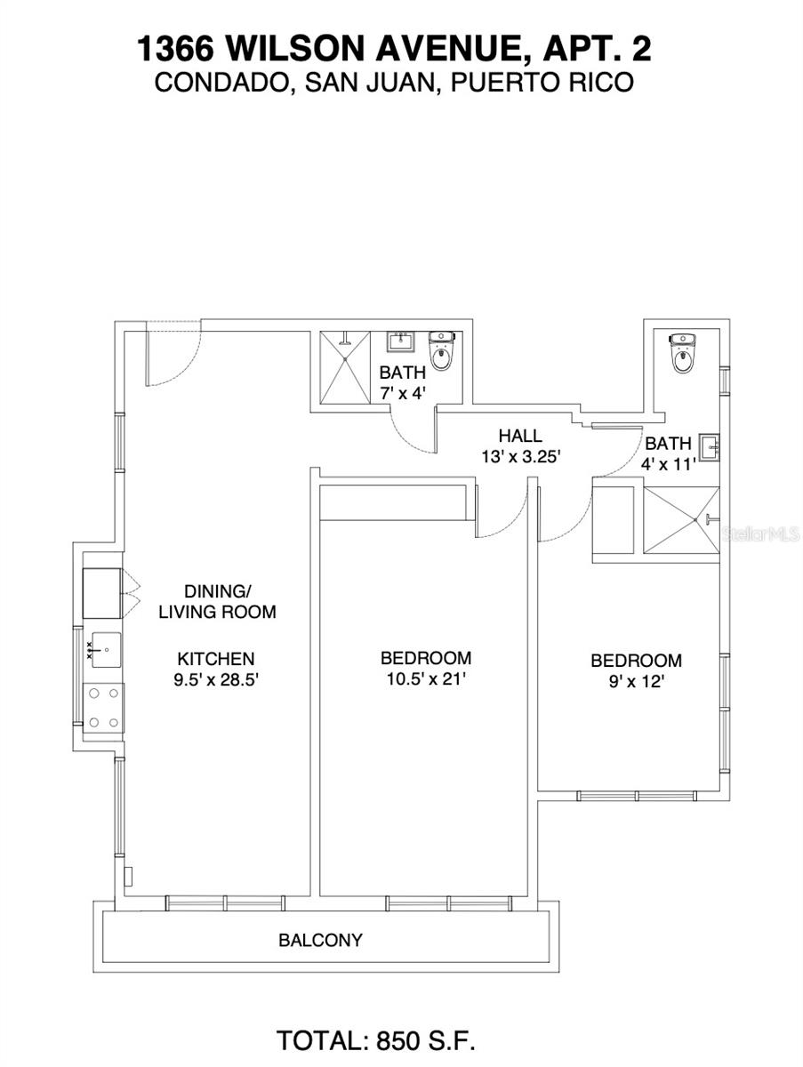
SAN JUAN, PR 2 Beds | 2 Baths $ 2,850Description
One or more photo(s) has been virtually staged. This spacious second-floor residence offers a bright and open layout with 2 bedrooms and 2 bathrooms with approximately 850 square feet of light and airy living space. Looking over the Condado skyline the apartment features a private Juliet balcony that spans from the bedroom into the main living area, creating a seamless indoor outdoor ambiance. This unit includes one enclosed garage parking space for added convenience and security.
Thoughtfully designed with a brighter, open feel, the residence is delivered fully furnished and turnkey. Modern finishes, all new appliances, imported Porcelanosa tile, and details throughout enhance both functionality and style, while the elevated position allows for an increase in natural light.
These units are delivered furnished, select images are enhanced using AI to showcase the full potential of the space and inspire how you can personalize it to reflect your own style and vision.
Location
Perfectly positioned in the heart of vibrant Condado, this residence offers an effortless lifestyle just moments from the beach, renowned restaurants, cafes, grocery stores, and premier entertainment. With quick access to major highways and only a 10 minute drive to the airport, the location seamlessly blends convenience with one of San Juan’s most desirable coastal settings.
As part of an exclusive six-unit collection, residents enjoy access to a beautifully maintained shared courtyard, offering a quiet and intimate atmosphere in the heart of the city—where the energy of urban living meets the privacy and serenity of a secluded oasis.
More Info on 1366 WILSON AVE #2
| Property ID: | 60353 |
| MLS Number: | PR9120406 |
| Status: | Active |
| Type: | Residential Lease |
| Price: | $ 2,850 |
| Bedrooms: | 2 |
| Bathrooms: | 2 |
| City: | SAN JUAN |
| Community: | |
| HOA: | 0 |
| Floor Area: | 850 sqft |
| Year Built: | 1950 |
Listing Provided By:
CHRISTIE'S INTERNATIONAL REAL ESTATE PUERTO RICO
Stellar MLS
