1366 WILSON AVE #6

SAN JUAN, PR 2 Beds | 2 Baths $ 2,700
Share with:   
Description
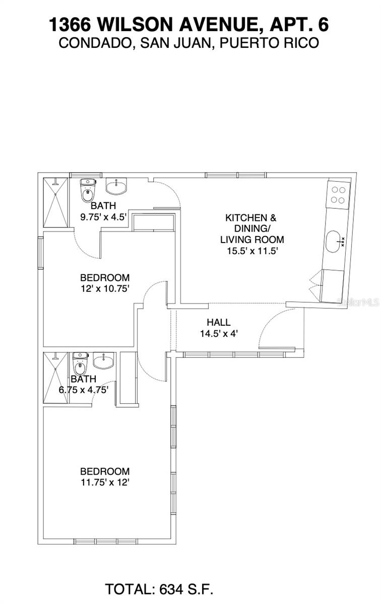
One or more photo(s) has been virtually staged. Perched on the second floor, Unit 6 showcases a well-appointed 2-bedroom, 2-bathroom layout encompassing 634 square feet. Recently upgraded with a new custom kitchen with quartz counter tops, imported tile flooring and modern appliances, the residence offers spacious bedrooms and a seamless flow between living and private areas. Three independent split A/C units—serving each bedroom and the main living space—provide optimal comfort year-round. A bright, airy and efficient design makes this an ideal low-maintenance urban retreat. These units are delivered furnished, select images are enhanced using AI to showcase the full potential of the space and inspire how you can personalize it to reflect your own style and vision. Location: Perfectly positioned in the heart of vibrant Condado, this residence offers an effortless lifestyle just moments from the beach, renowned restaurants, cafes, grocery stores, and premier entertainment. With quick access to major highways and only a 10 minute drive to the airport, the location seamlessly blends convenience with one of San Juan’s most desirable coastal settings. As part of an exclusive six-unit collection, residents enjoy access to a beautifully maintained shared courtyard, offering a quiet and intimate atmosphere in the heart of the city—where the energy of urban living meets the privacy and serenity of a secluded oasis.

More Info on 1366 WILSON AVE #6

Property ID: 60354
MLS Number: PR9120408
Status: Active
Type: Residential Lease
Price: $ 2,700
Bedrooms: 2
Bathrooms: 2
City: SAN JUAN
Community:
HOA: 0
Floor Area: 634 sqft
Year Built: 1950

Listing Provided By:
CHRISTIE'S INTERNATIONAL REAL ESTATE PUERTO RICO
Stellar MLS

Request More Info